Loading...

Download a Fabrication Drawing of Overhead Travelling Crane

Assembly Drawing, Part Drawing and Part List for Fabrication.

Get Started

#1.Project Reference

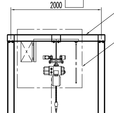
Singgle Girder Overhead Cranes 5T-11M Span with Free Standing

  Single Girder Crane (Beam Girder)

  SWL 5 T. - 11M. Span

  with Free Standing Runway Structure

Read More